本文へスキップ

造園土木工事・外構工事などのご相談は広島冨田造園株式会社へ

電話でのお問い合わせは011-372-7100

〒0611121 北海道北広島市中央3-8-4

デザイン集detail

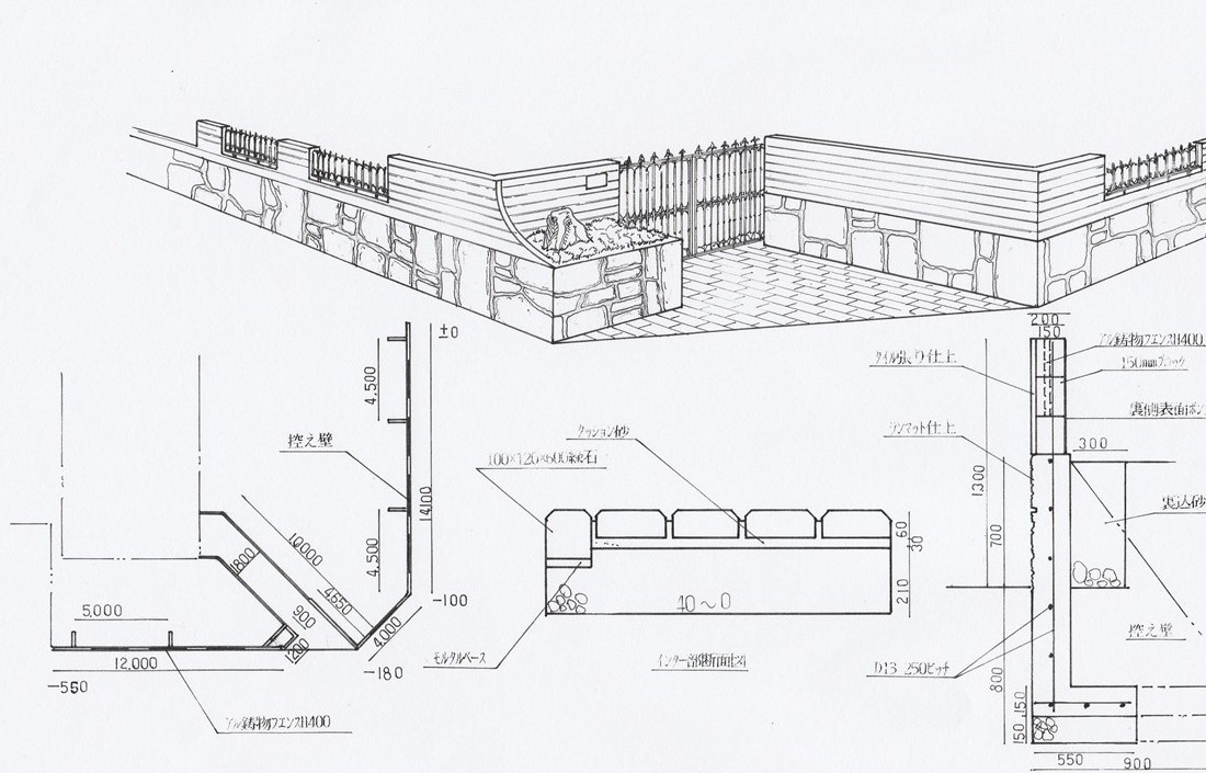
手書きデザイン(1973年〜2002年)からCADデザインへ

創業当時はお客様がイメージしやすいように、一つ一つ手書きで細かい部分まで丁寧に図面を描くことを心がけ、お客様へ提案させていただいておりました。
現在は、CADによる図面作成で、より仕上がりイメージがわかりやすい図面でデザインをご提案させていただいております。


これまでのデザインを参考にしてください。
手書きデザイン※クリックすると拡大します
手書き1 手書き2 手書き3
手書き4 手書き5 手書き6
手書き7 手書き8 手書き9
手書き10 手書き11 手書き12
手書き12 手書き13 手書き14
手書き15 手書き16 手書き17
手書き18 手書き19 手書き20
手書き21 手書き22 手書き23
手書き24 手書き25 手書き26
手書き27 手書き28 手書き29
手書き30

CADデザイン
※クリックすると拡大します
CAD1 CAD2 CAD3
CAD4 CAD5 CAD6
CAD7 CAD8 CAD9
CAD10 CAD11 CAD12
CAD13 CAD14 CAD15
CAD16 CAD17 CAD18
CAD19